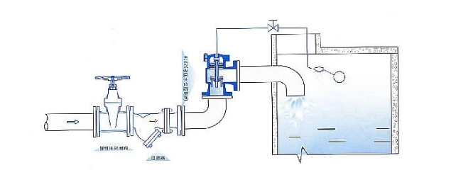
液压水位控制阀安装方法:
选定royal皇家88平台液压水位阀控制阀的型号后,应根据产品特性合理安装。安装时的注意事项:选择与液压阀型号规格压力相匹配的连接法兰;进水管直径应大于或等于阀门公称通径,出水口应低于浮球阀。浮球阀安装应距离出水管口一米以上且应安装在利于检修的位置,比如水池的人孔附近;为防止水力松动阀芯结构,应对阀芯活塞杆两端紧固螺母采取防退措施。为防止虹吸倒流,水箱内出口管出水口应设置防虹吸小孔或略高于控制水位。为防止噪声及水位波动,出水口应设置消能筒。使用时,截止阀应全开,如同一水池安装二只以上阀则应保持同一水平面。因主阀关闭要滞后浮球阀关闭约30~50秒,故水箱要有足够的空余容积,以防溢水。为防止杂质、砂粒进入阀内引起工作失灵,阀前应装过滤器。如安装在地下室水池,则应在地下泵房安装报警装置。

液压水位控制阀安装注意事项:
1. 将该阀垂直固定在进水管上,然后将控制管、截止阀和浮球阀连接旋紧在该阀上即可。
2. 进水管直径应大于或即是阀门公称通径,出水口应低于浮球阀。浮球阀安装应间隔水管一米以上;在水箱内出水管高于水位线处钻一小孔,以防直空回水。
3. 使用时,截止阀应全开,如统一水池安装二只以上阀则应保持统一水平面。
4. 因主阀封闭要滞后浮球阀封闭约30~50秒,故水箱要有足够的空余容积,以防溢水。
5. 为防止杂质、砂粒进入阀内引起工作失灵,阀前应装过滤器。
6. 如安装在地下水池,则应在地下泵房安装报警装置。



客服1